|
||||||
| 種目 | 所在地 物件名 |
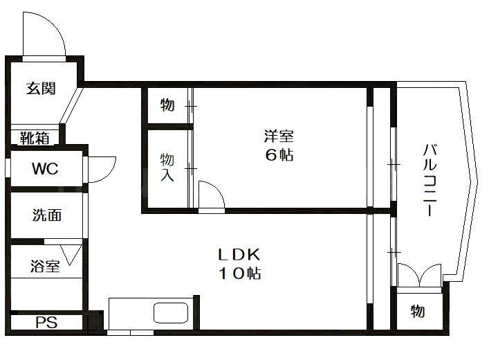
専有面積 | 間取 構造 |
築年月 引渡時期 |
駐車場 駐車場料金 |
|
|---|---|---|---|---|---|---|
| 中古マンション | 大阪市淀川区西宮原1丁目 グランドマンションニュー大阪 |
15.11坪 | 1LDK 鉄骨鉄筋コンクリート造SRC |
S47/05 相談 |
無 |
|
グランドマンションニュー大阪
★平成29年リフォーム済み…だからおすすめ!上層階なので眺望良し
| 物件番号 | Bm1571 | |||||||||||||||||
|---|---|---|---|---|---|---|---|---|---|---|---|---|---|---|---|---|---|---|
| 交通 | 修繕費 | 8,640円 | ||||||||||||||||
| 総戸数 | 72戸 | 階/階建 | 10階/地上11階建 | |||||||||||||||
| 取引態様 | 一般媒介 | 用途地域 | 商業地域 | |||||||||||||||
| 管理形態 | 全部委託 | バルコニー面積/方向 | 6.64m2/北 | |||||||||||||||
| 特色 | グランドマンションニュー大阪 ★エレベーター、嬉しいシステムキッチン、ガスキッチン、3口コンロ付、電気、都市ガス、上下水道、給湯器、バス・トイレ別、パウダールームのあるお部屋、独立洗面台、室内洗濯機置場、やっぱり洋室やね、収納有り、来客時に安心モニター付インターホン、シューズBOX、上層階でましたよ、眺望良いです、2階以上のお部屋です、駐輪場現在空きなし、図面は概略図に付き現況を優先です、【当社直物件です】、諸条件相談可!、平成29年リフォーム済み…だからおすすめ! |
|||||||||||||||||
|
ローンを組むにあたり、月々の返済額をシミュレーションします。
|
||||||||||||||||||
地図
|
地図を右クリックでルート検索が可能です。
|
位置情報に関するご注意:現在位置情報は精査中の為、正確ではない場合があります。あくまで参考程度の情報となります。
![]()
- 有限会社フラーリシュハウス
- TEL:06-6357-9881
- FAX:06-6357-6036
- 【フラーリシュハウスのfacebookページ】はこちら♪
- ☆いつもありがとうございます
- 【希望条件リクエスト】簡単1分です♪
- ☆希望条件に近い物件情報(非公開物件含む)をメールで送ります☆


































































