若杉ビル

賃料 31.46万円

1/25

物件コード「25317」をお伝えください。

電話でお問合せ LINEでお問合せ

物件情報

賃料 31.46万円
管理費等 -
敷金/保証金 12ヶ月/-
礼金 -
めやす賃料
フリーレント
タイプ 貸店舗
所在地
大阪市北区中津1丁目 地図
交通 大阪メトロ堂筋線 中津駅まで 徒歩2分
阪急宝塚線 中津駅まで 徒歩7分
阪急宝塚線 梅田駅まで 徒歩10分
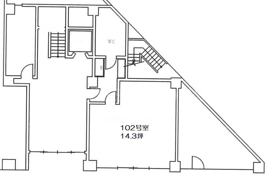
面積 47.27m²
坪/坪賃料 14.29坪/22,001円
建物構造 鉄骨鉄筋コンクリート造SRC
階/階建 1階~1階迄/10階建
駐車場
保険 要 2年
敷引・償却 -
契約期間 定期借家3年
更新料
引渡時期 相談
現況 空室
取引態様 仲介
仲介手数料 100%
築年月 1972/00
保証会社詳細 必須 セーフティイノベーション 月額トータルの100%(更新料10%/年)
諸費用 初回保証料 314,600円
更新保証料/年 31,460円
館銘板実費 -
特色 物件名【若杉ビル】
★1階部分約14.3坪、路面!、視認性良し!、トイレ(共同)、電気、都市ガス、上下水道、飲食相談可!、インターフレームダクト天井、シャッター付、重飲食不可、全館禁煙、電子契約、賃貸保証加入が必要です、美容室向き、エステ・ネイル・マッサージ店向き、スクール向き、クリニック向き、物品販売店向き、【当社直物件です】、図面は概略図に付現況を優先です、他社サイト・ポータルサイトで気になる物件がございましたらお気軽にご相談ください、ひとくちメモ⇒この場所この広さでこの家賃は魅力♪、スケルトン渡し内装はあなたの好みに、人気物件ですのでお早目に~!、貸主様からご依頼頂き弊社直接募集…なのでお問い合わせは今すぐ!
コメント 【若杉ビル】
★1階約14.3坪、路面、視認性良し、インターフレームダクト天井、シャッター付、飲食相談可(重飲食不可)
★美容室・エステ・ネイル・マッサージ・スクール・クリニック・物品販売店向き
★ひとくちメモ⇒この場所この広さでこの家賃は魅力♪スケルトン渡し内装はあなたの好みに♪人気物件ですのでお早目に~!貸主様からご依頼頂き弊社直接募集…なのでお問い合わせは今すぐ!
※掲載されている物件データが現状と異なる場合は現状を優先します。

更新情報

情報更新日 2026年03月03日
次回更新予定日 2026年03月04日

物件コード「25317」をお伝えください。

電話でお問合せ LINEでお問合せ
電話 メール LINE
簡易お問合せ

お名前


メールアドレス


問合せ内容


OK